Descripción

Proyecto ÁGORA en una ubicación estratégica de Cordón Sur, sobre Constituyente entre Minas y Magallanes. Torre de 55 unidades de 1 dormitorio con precios de lanzamiento, una oportunidad para anticiparse y acceder a condiciones exclusivas en el inicio de obra.

Todas las unidades cuentan con terraza y se entregan con equipamiento completo: horno, anafe, campana, mesadas de cuarzo y placares en cocina y dormitorios. El edificio incorporará domótica para programar aires acondicionados, calefón, persianas eléctricas y cerradura digital.

La propuesta se desarrolla en 55 apartamentos distribuidos en cinco unidades por piso hasta el nivel 11, con 28 plazas de garage, dos ascensores y amenidades que incluyen SUM en planta baja y en el último piso, solárium, lavadero , zona de tenders.y gimnasio

Inicio de obras previsto para noviembre de 2025 y entrega en diciembre de 2027. Proyecto amparado por la Ley de Vivienda Promovida 18.795, con beneficios fiscales y gran potencial de renta, revalorización y reventa.

Unidad 201 U$ 123025
Gastos de ocupacion 4%
Garajes desde U$ 15000
Interesante descuento por pago contado!
Sylvia Levin
Broker Asociada a Kosak Inversiones Inmobilia

Características de la propiedad

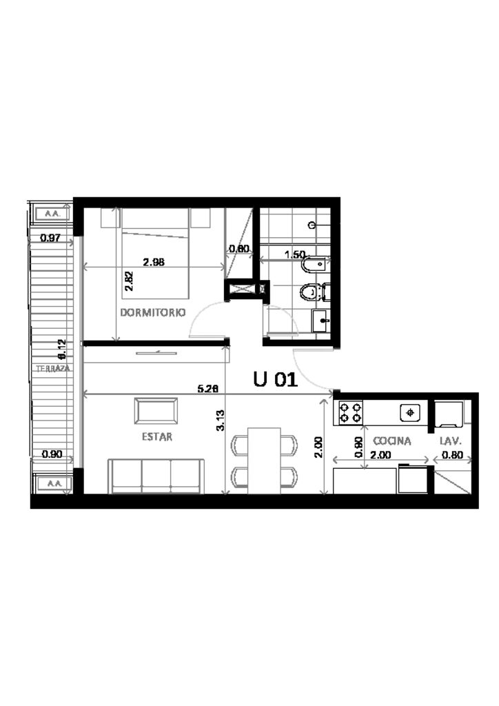
  • Habitaciones1 Habitación
  • BañosBaños: 1
  • SuperficieSuperficie: 51 m²
  • Superficie ConstruidaSuperficie Construida: 43 m²
  • Superficie BalconesSuperficie Balcones: 6m²
  • ParrilleroParrillero
  • CalefacciónCalefacción: AA
  • OrientaciónOrientación: Este
  • DisposiciónDisposición: Frente
  • PisoPiso: 2
  • Aptos por pisoAptos por piso: 5
  • Pisos EdificioPisos Edificio: 12
  • AscensorAscensor

Seguinos en redes sociales!

¿Quiénes somos?

Kosak Inversiones Inmobiliarias es una empresa con más de cinco décadas de presencia en el mercado uruguayo.