U$S 243.200
Venta

Descripción

MAR INTIMO SUR
SOLYMAR SUR Ubicación estratégica y privilegiada, próxima a servicios esenciales y un entorno agradable.
Complejo residencial cerrado conformado por cuatro viviendas en propiedad horizontal, ideal para familias en crecimiento que buscan espacios tranquilos y confortable.
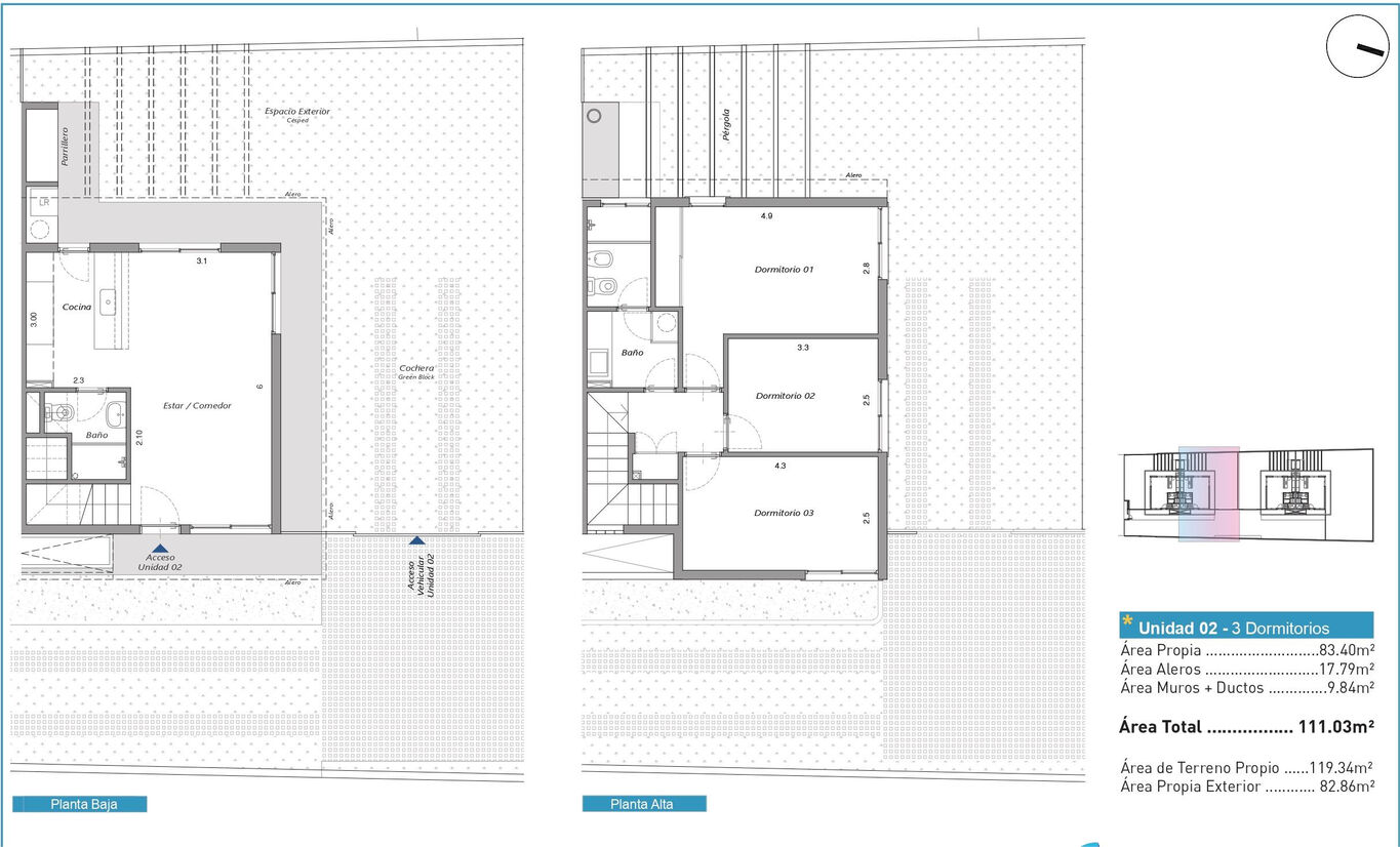
Dúplex de 3 dormitorios.
Construcción tradicional, muros exteriores en HCCA, pisos en porcelanato, aberturas en aluminio de la serie PROBBA. Mueble en cocina en bajo y sobre mesada. 3 dormitorios, principal con placard, cortinas de enrollar, 2 baños completos. Previsión para aire acondicionado. Jardín y fondo con parrillero. Cochera.
Mar Intimo cuenta con el beneficio de la ANV ley 18.795 Vivienda de Interés Social que consta de:
Exoneración del IP
Exoneración del Impuesto al Patrimonio por 10 años desde la finalización de la obra
Exoneración del IRPF / IRAE / IRNR
Exoneración para el vendedor y comprador del ITP 2% sobre la valuación catastral en la primera enajenación
Gastos comunes aprox. $2.000, incluyen: Iluminación general, jardinería de las áreas comunes, pequeños trabajos de mantenimiento como : limpieza de las azoteas y administración
Gastos de ocupación 4%
Comisión Inmobiliaria 3% + IVA
MINT0002

Características de la propiedad

  • Habitaciones3 Habitaciones
  • BañosBaños: 2
  • Superficie ConstruidaSuperficie Construida: 111 m²
  • Superficie TerrenoSuperficie Terreno: 111m²
  • Superficie BalconesSuperficie Balcones: 75m²
  • GarageCochera: 1
  • ParrilleroParrillero
  • OrientaciónOrientación: Este
  • Propiedad HorizontalPropiedad Horizontal
  • PlantasPlantas: 2
  • Año de ConstrucciónAño de Construcción: 2025
  • JardínJardín
  • Acepta MascotasAcepta Mascotas
  • Metros frente: 5.4m
  • Gastos comunes inquilino: $U 2000

Videos

Seguinos en redes sociales!

¿Quiénes somos?

Kosak Inversiones Inmobiliarias es una empresa con más de cinco décadas de presencia en el mercado uruguayo.